top of page
Create Your First Project
Start adding your projects to your portfolio. Click on "Manage Projects" to get started
Ny første sal, Brønshøj
Årstal / Lokation
2024 / København, Brønshøj
Beskrivelse
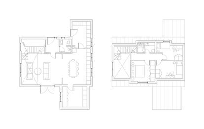
I Brønshøj har vi tegnet en ny første sal til et klassisk parcelhus, da en ung børnefamilie manglede plads, og samtidig ønskede at blive boende tæt på familie og venner.
Det oprindelige parcelhus i ét plan, var opført med røde mursten og røde mørtelfuger – en detalje som man ikke ser ofte. Denne ensfarvning på tværs af bygningens materialer, blev styrende for den efterfølgende farvesætning af tag og vinduer.
Indvendigt er boligen blevet udvidet med tre soveværelser og et nyt badeværelse på 1. sal.
En del af stuen er nu et dobbelthøjt rum, hvor trappen er indtænkt som et rumligt element, med en siddeplads i vinduet og god kontakt mellem stuen og 1. sals repos.
bottom of page



















































